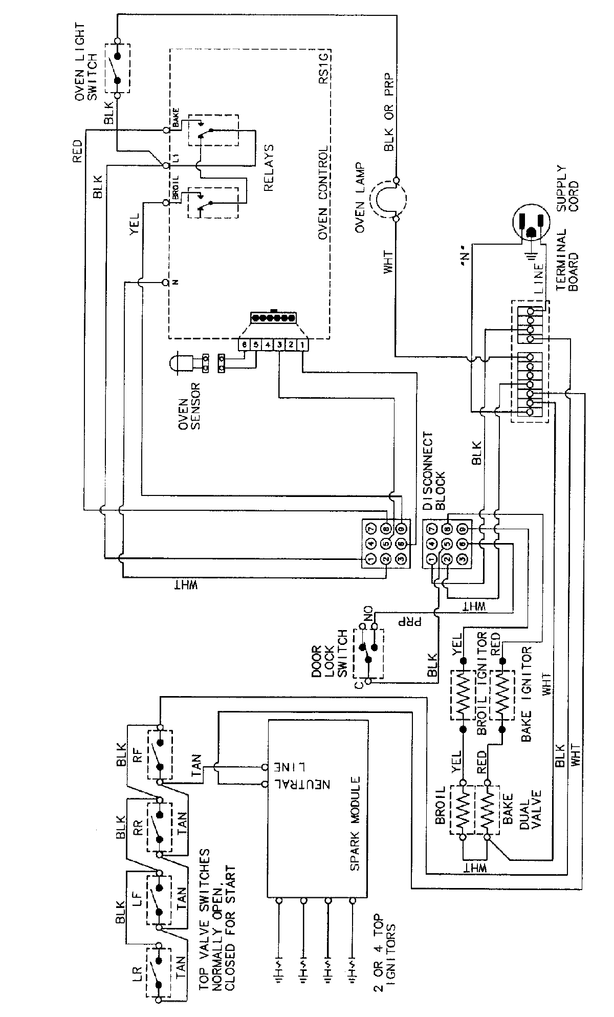
MGR5755BDQ 07 – WIRING INFORMATIONadmin2025-04-26T09:13:17+00:00MGR5755BDQ 07 – WIRING INFORMATION ProductsPositionProductNIMAY 15002242