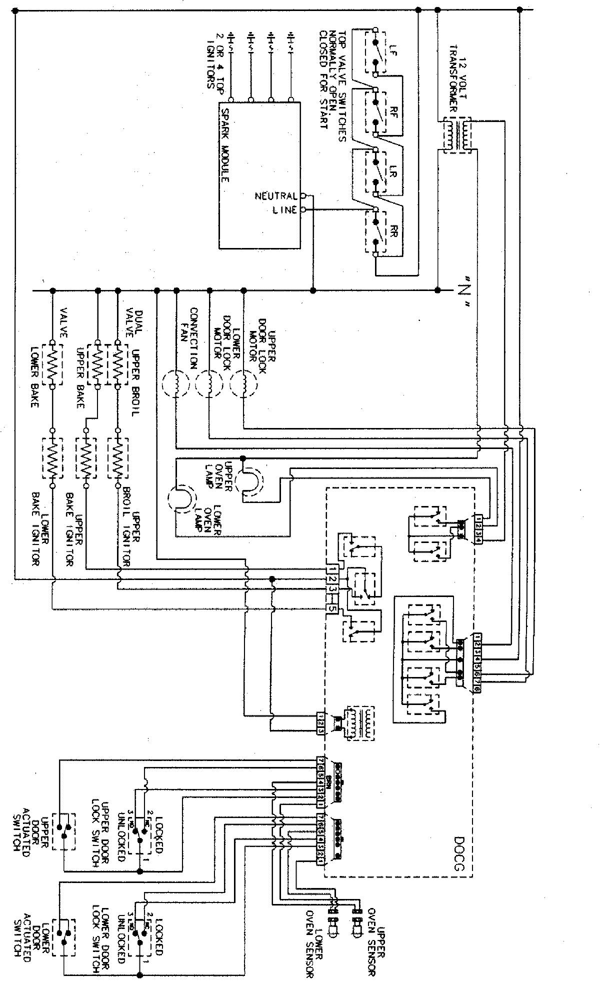
MGR6772BDQ 09 – WIRING INFORMATION (UPPER)admin2025-04-26T09:15:27+00:00MGR6772BDQ 09 – WIRING INFORMATION (UPPER) ProductsPositionProductNIMAY 15003003