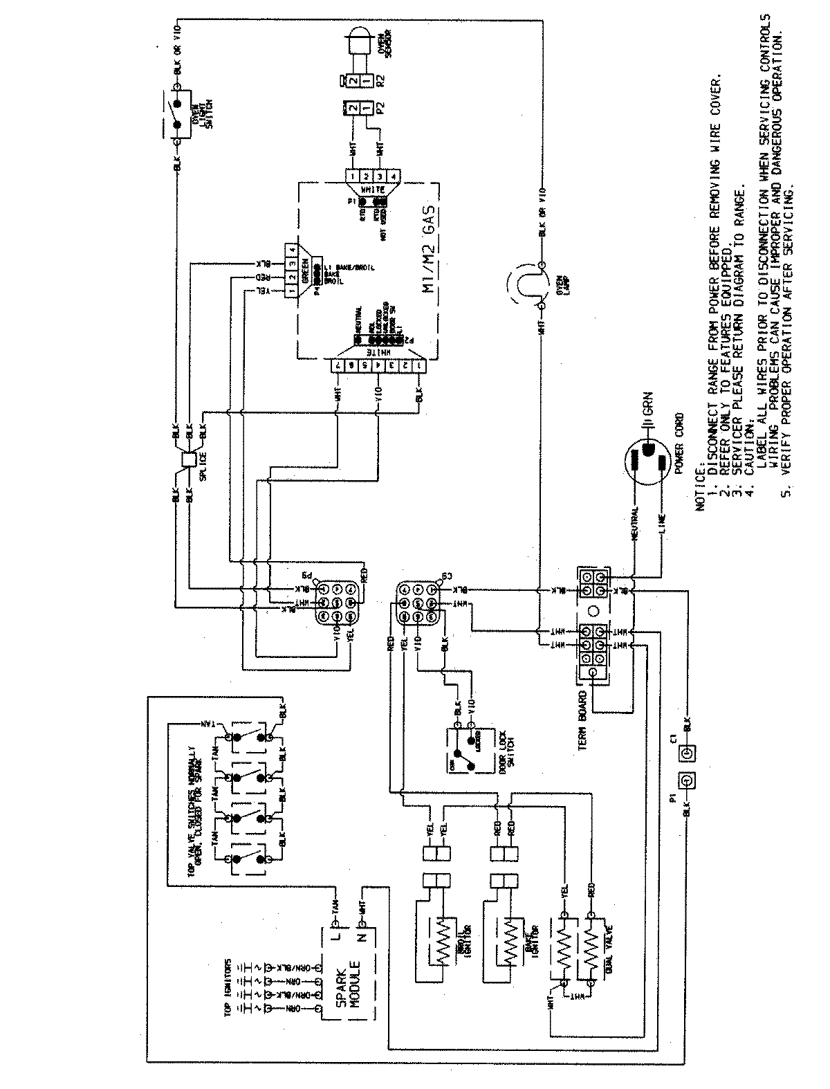
MGRL753BDS 07 – WIRING INFORMATION

MGRL753BDS 07 – WIRING INFORMATION

Products

PositionProduct
NIMAY 15003515