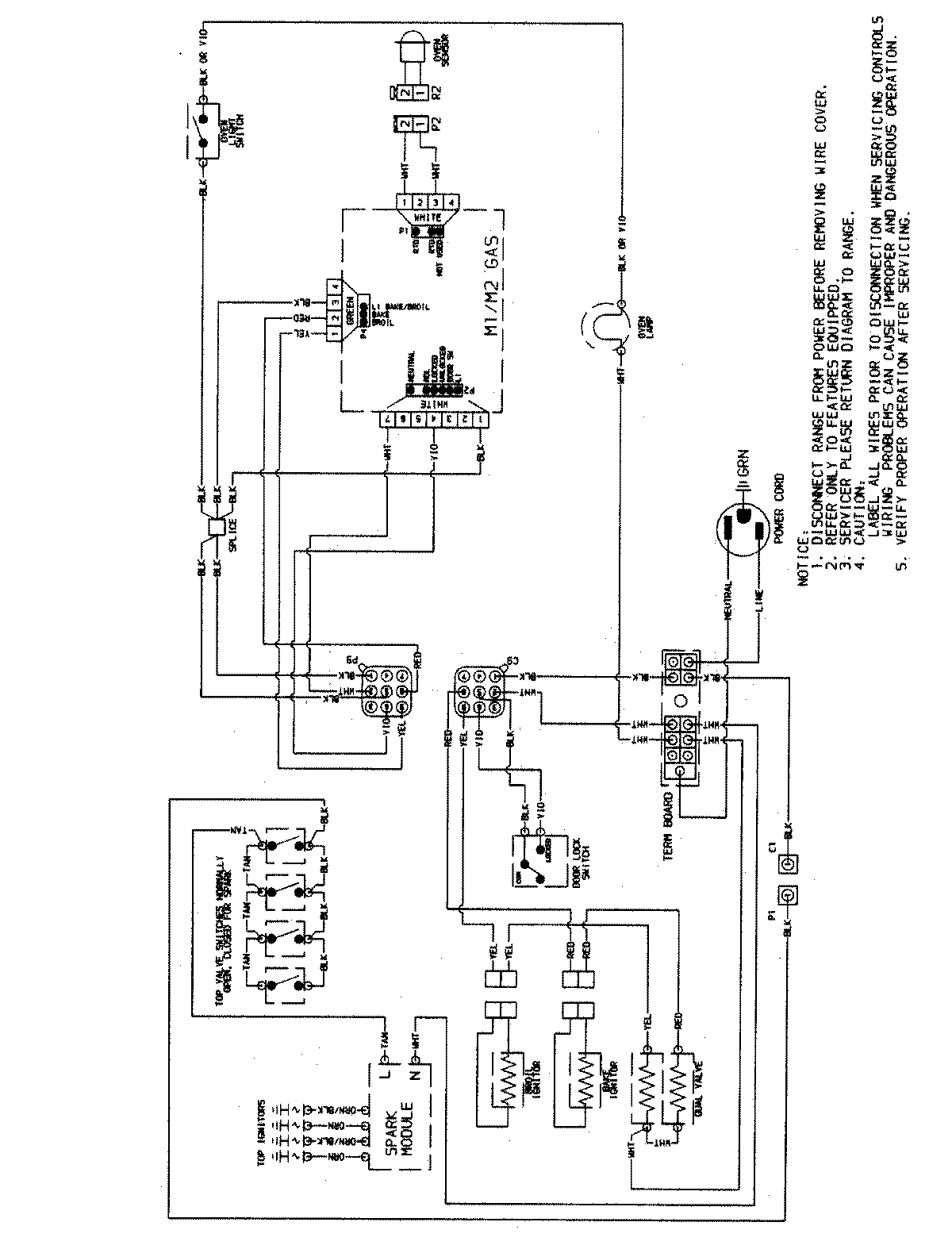
MGRM752BDQ 07 – WIRING INFORMATIONadmin2025-04-26T13:05:50+00:00MGRM752BDQ 07 – WIRING INFORMATION ProductsPositionProductNIMAY 15003515