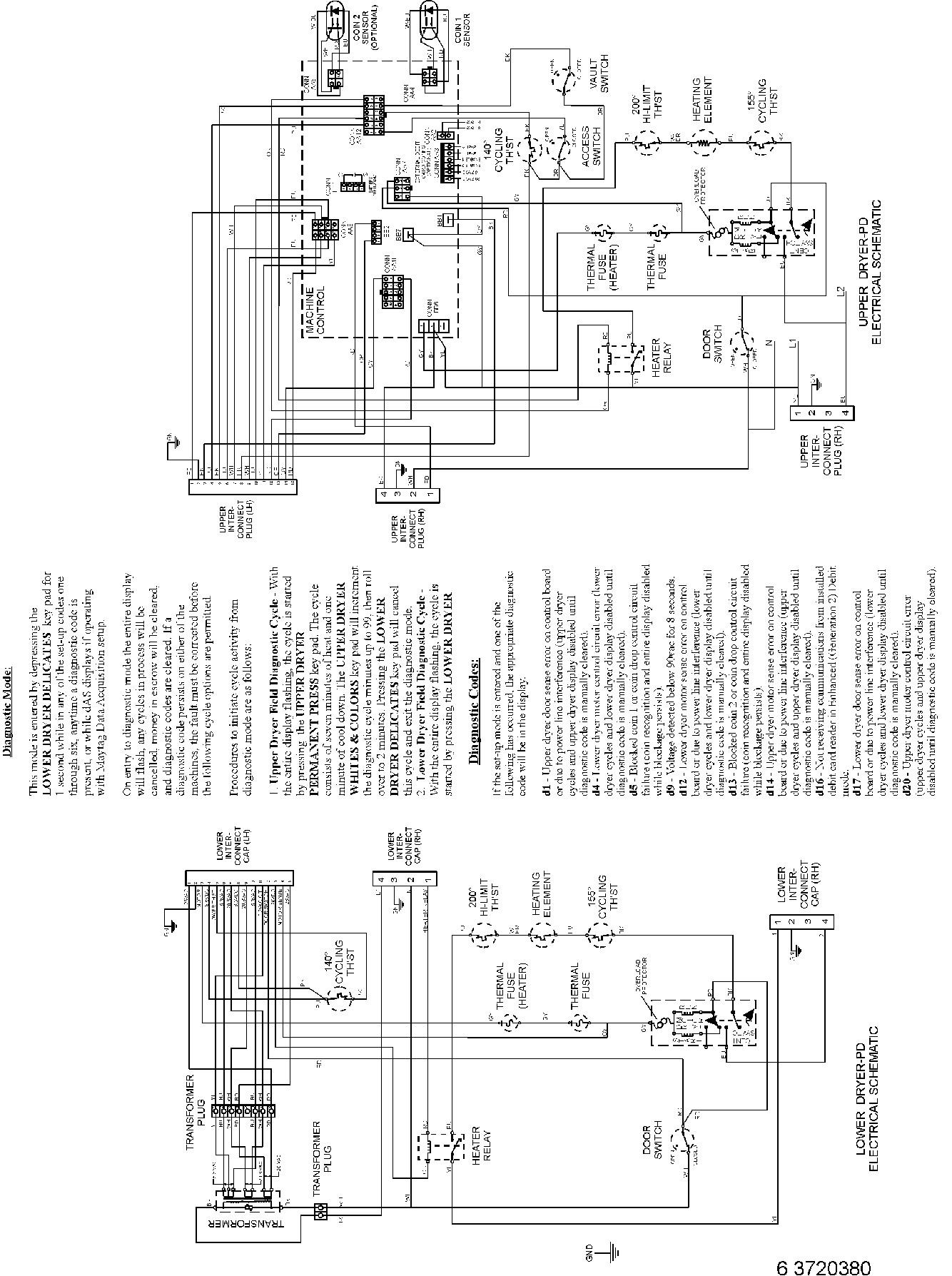
MLG23PDFWW 14 – WIRING INFORMATION(ELEC)admin2025-04-26T11:35:35+00:00MLG23PDFWW 14 – WIRING INFORMATION(ELEC) ProductsPositionProduct001DOWEL PIN FOR HANDLE