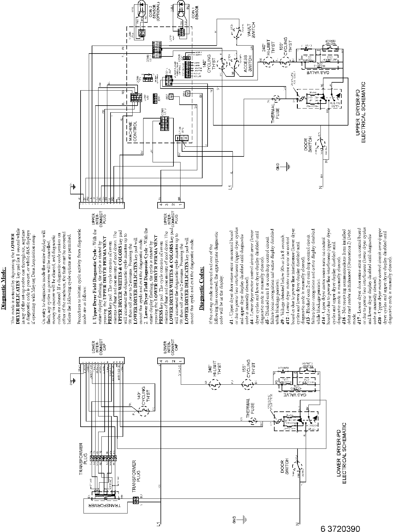
MLG23PRFWW 11 – WIRING INFORMATION(GAS)admin2025-04-26T11:31:54+00:00MLG23PRFWW 11 – WIRING INFORMATION(GAS) ProductsPositionProduct001DOWEL PIN FOR HANDLE