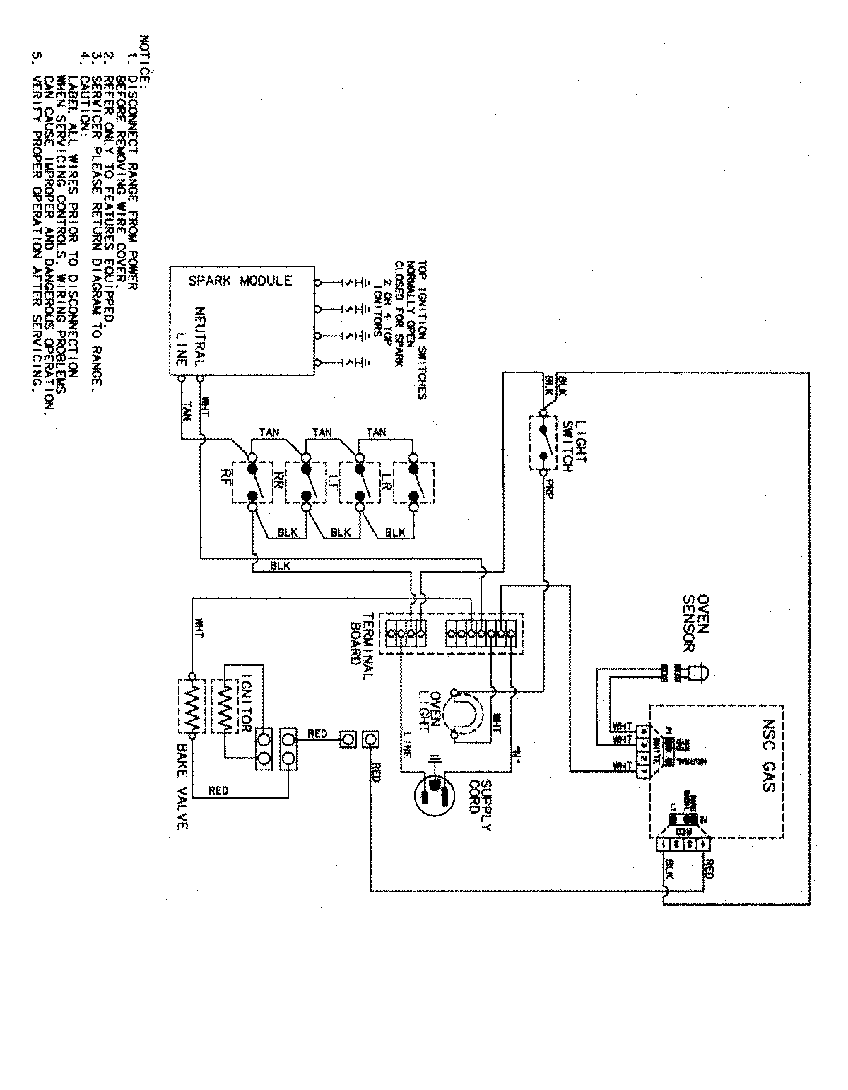
MLR4451AJQ 07 – WIRING INFORMATIONadmin2025-04-26T11:30:49+00:00MLR4451AJQ 07 – WIRING INFORMATION ProductsPositionProductNIMAY 15003530