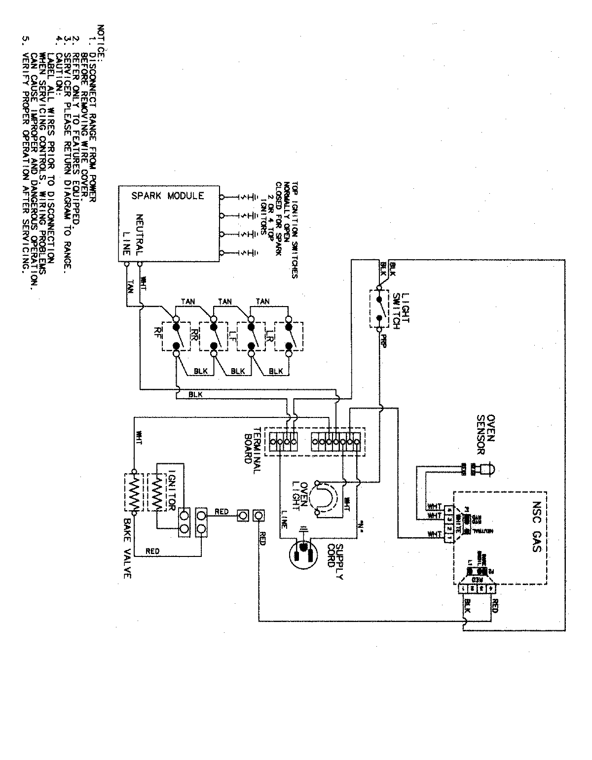
MLR4451AJW 07 – WIRING INFORMATIONadmin2025-04-26T11:29:36+00:00MLR4451AJW 07 – WIRING INFORMATION ProductsPositionProductNIMAY 15003530