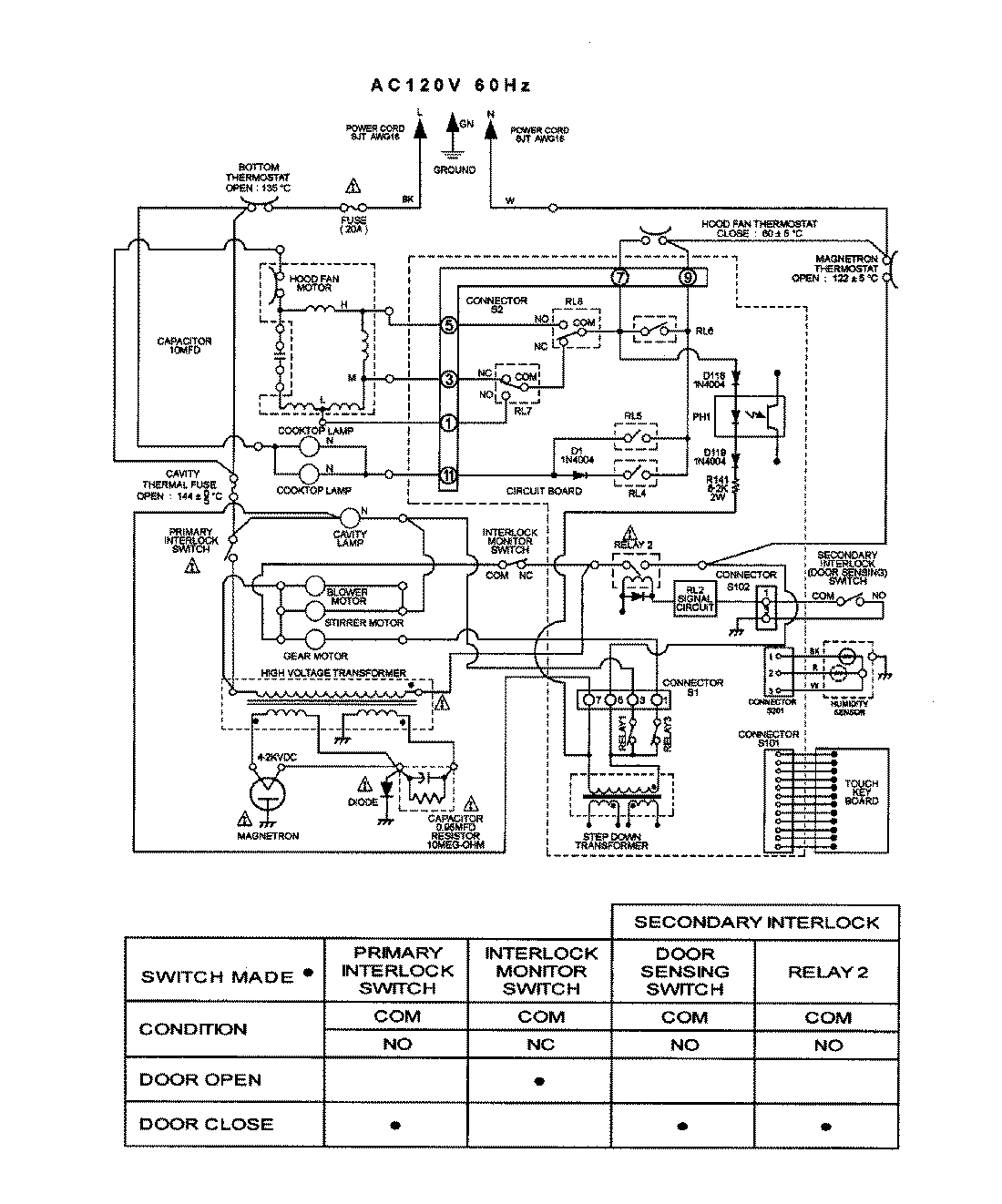
MMV5100AAB 06 – WIRING INFORMATIONadmin2025-04-26T12:18:32+00:00MMV5100AAB 06 – WIRING INFORMATION ProductsPositionProductNIMAY 15002839