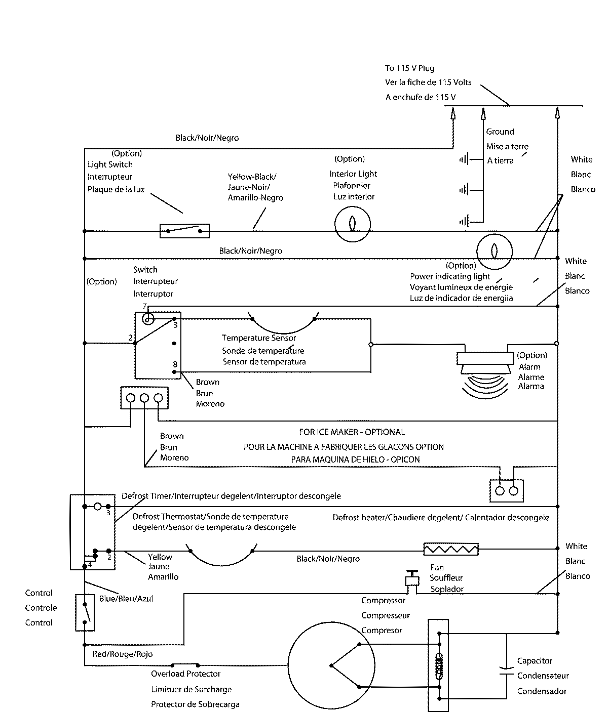
MQU1656BEW 05 – WIRING INFORMATIONadmin2025-04-26T12:21:46+00:00MQU1656BEW 05 – WIRING INFORMATION ProductsPositionProductNIMAY 15003932