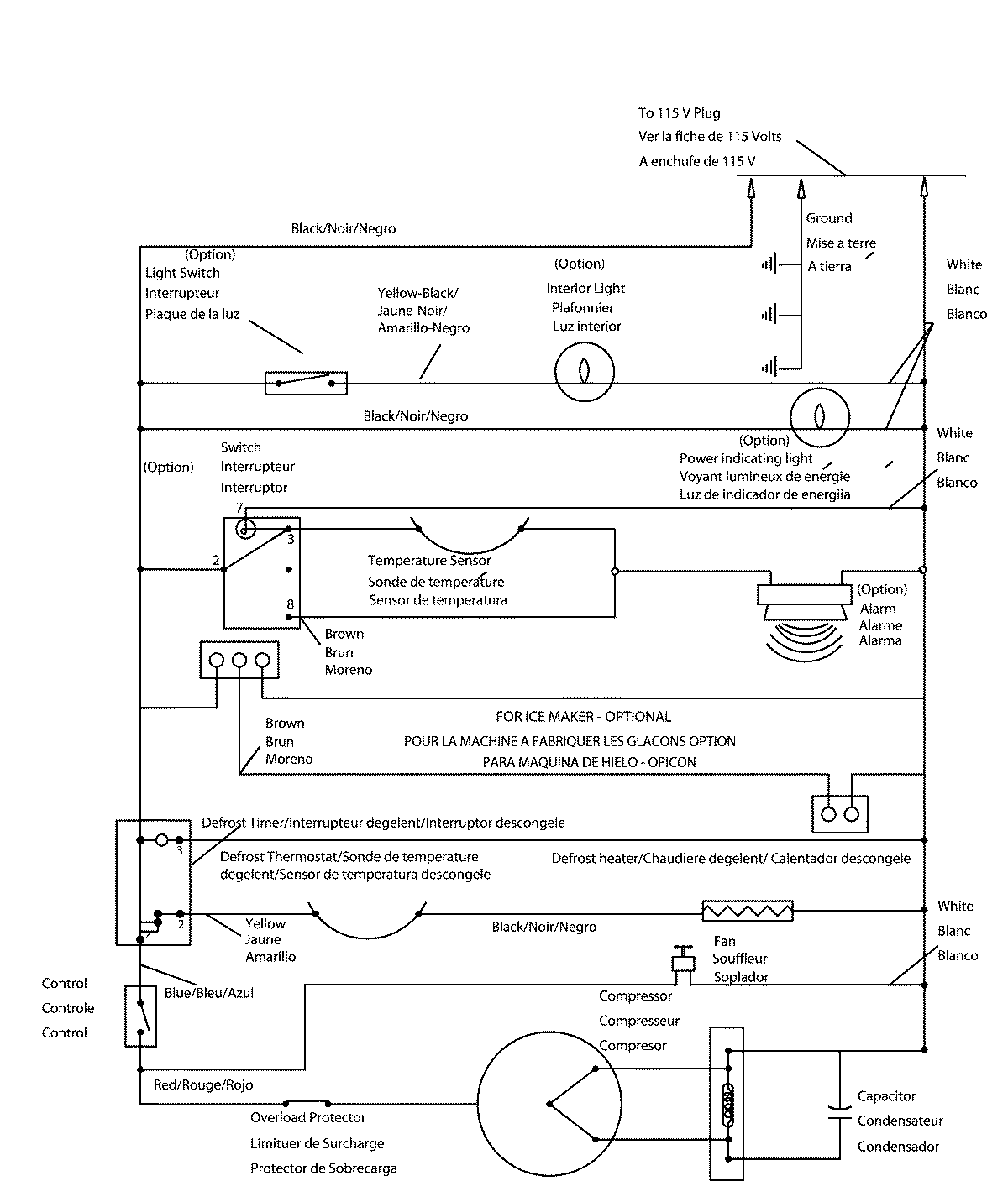
MQU2057BEW 05 – WIRING INFORMATIONadmin2025-04-26T12:22:30+00:00MQU2057BEW 05 – WIRING INFORMATION ProductsPositionProductNIMAY 15003932