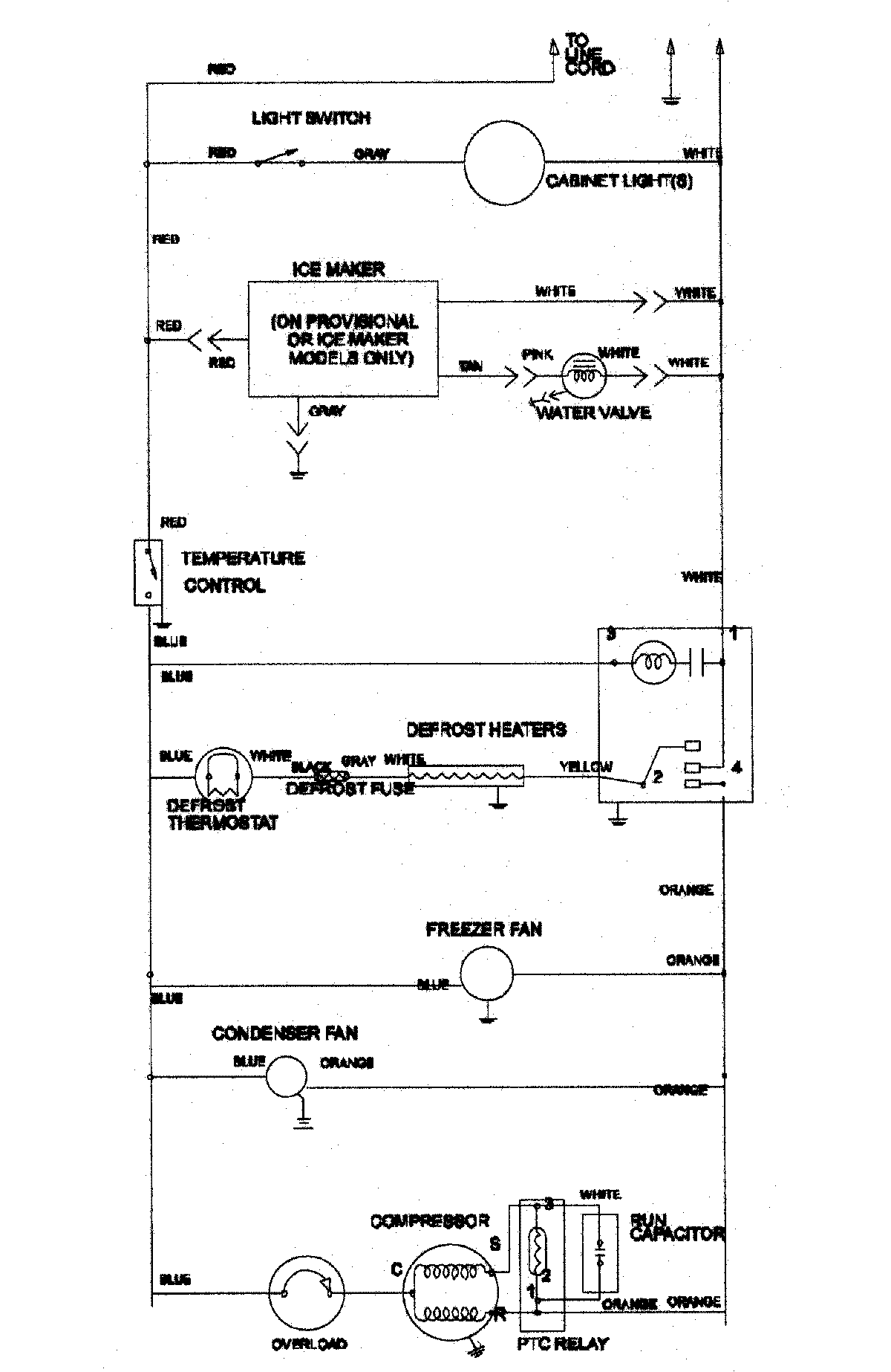
MTL1502AEW 09 – WIRING INFORMATIONadmin2025-04-26T12:14:31+00:00MTL1502AEW 09 – WIRING INFORMATION ProductsPositionProductNIMAY 15003473