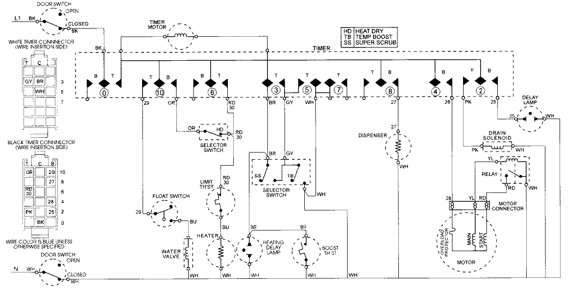
PDB2420AWE 07 – WIRING INFORMATIONadmin2025-04-26T09:40:15+00:00PDB2420AWE 07 – WIRING INFORMATION ProductsPositionProductNIMAY 15002060