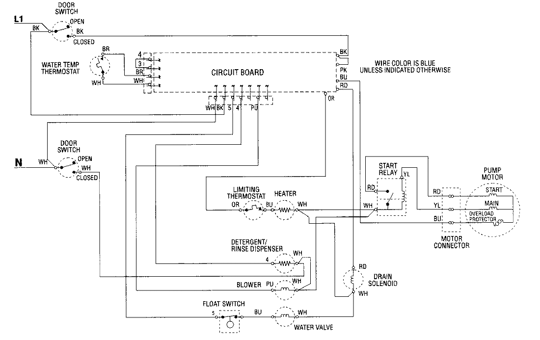
PDB3430AWE 08 – WIRING INFORMATIONadmin2025-04-26T09:38:24+00:00PDB3430AWE 08 – WIRING INFORMATION ProductsPositionProductNIMAY 15001986