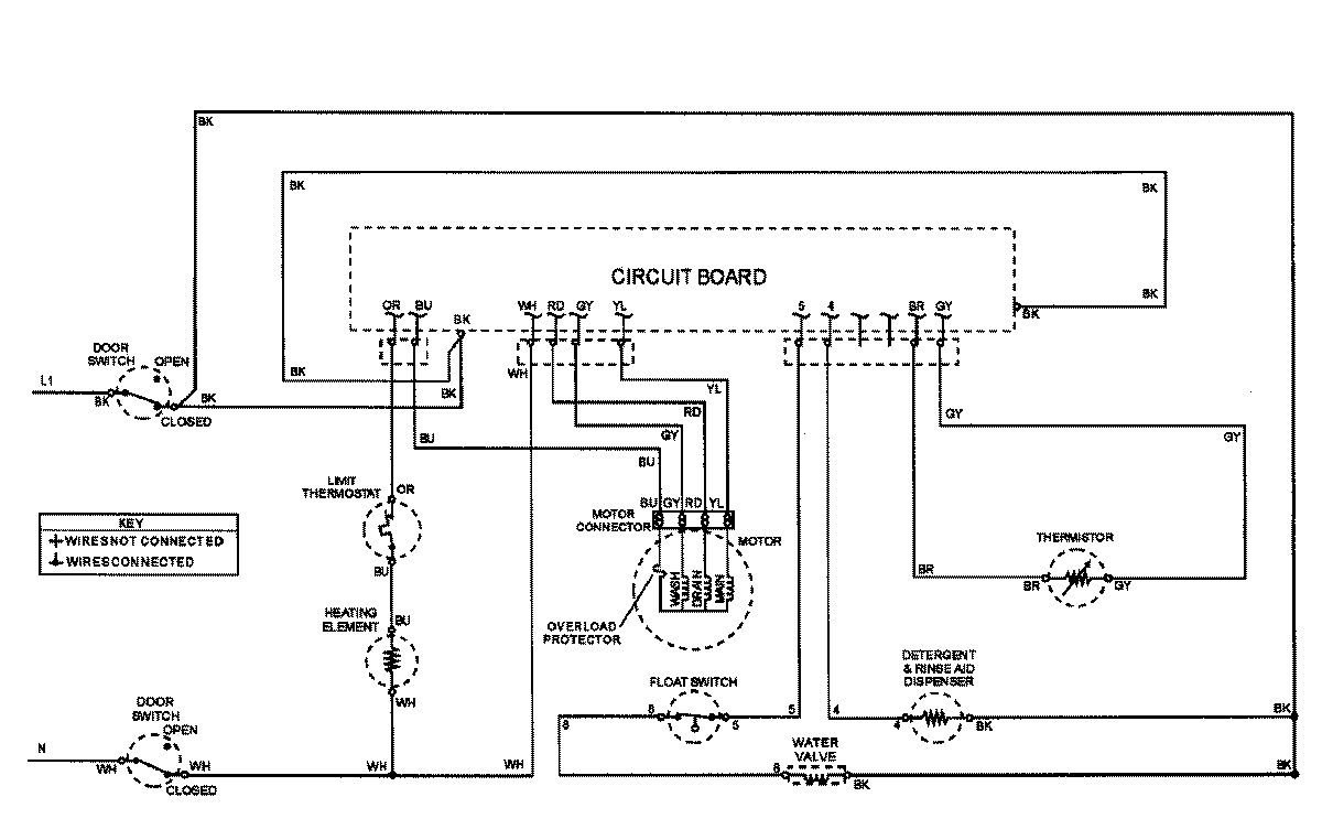
PDB4600AWN 08 – WIRING INFORMATIONadmin2025-04-26T09:42:04+00:00PDB4600AWN 08 – WIRING INFORMATION ProductsPositionProductNIMAY 15002835NIMAY 15002868