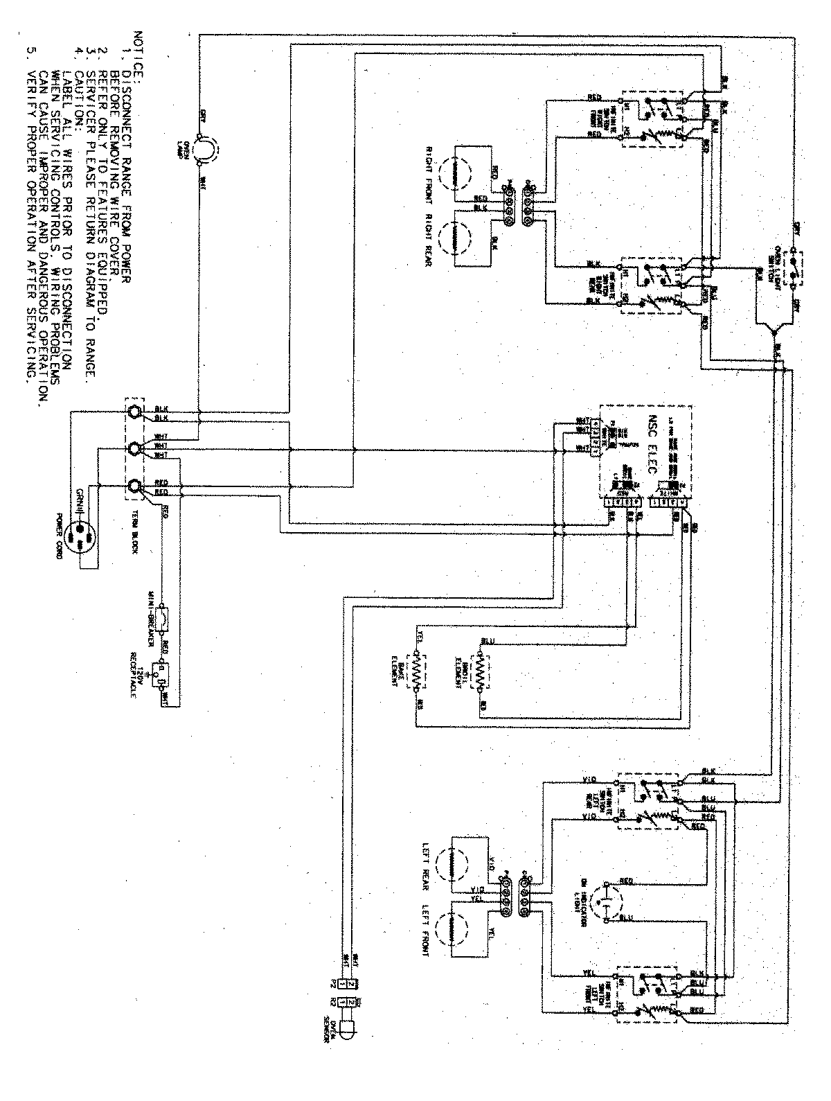
PER1125ACW 07 – WIRING INFORMATIONadmin2025-04-26T09:41:04+00:00PER1125ACW 07 – WIRING INFORMATION ProductsPositionProductNIMAY 15003617