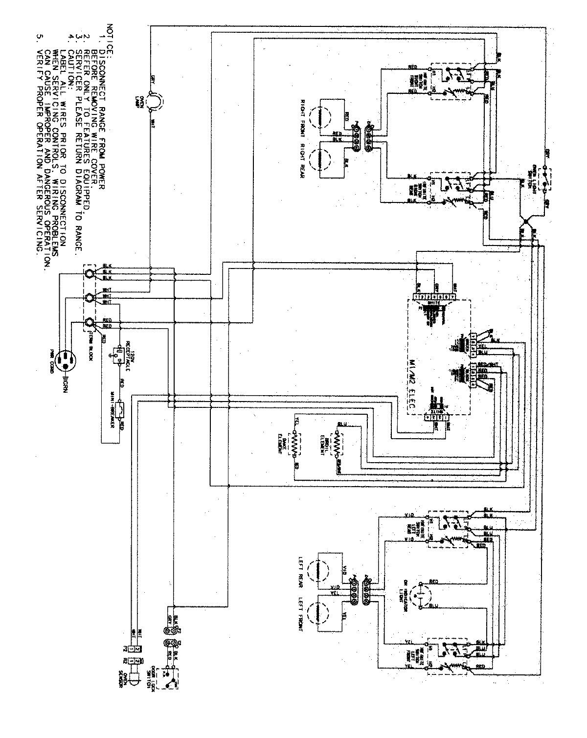
PER3524ACW 06 – WIRING INFORMATIONadmin2025-04-26T09:42:35+00:00PER3524ACW 06 – WIRING INFORMATION ProductsPositionProductNIMAY 15003611