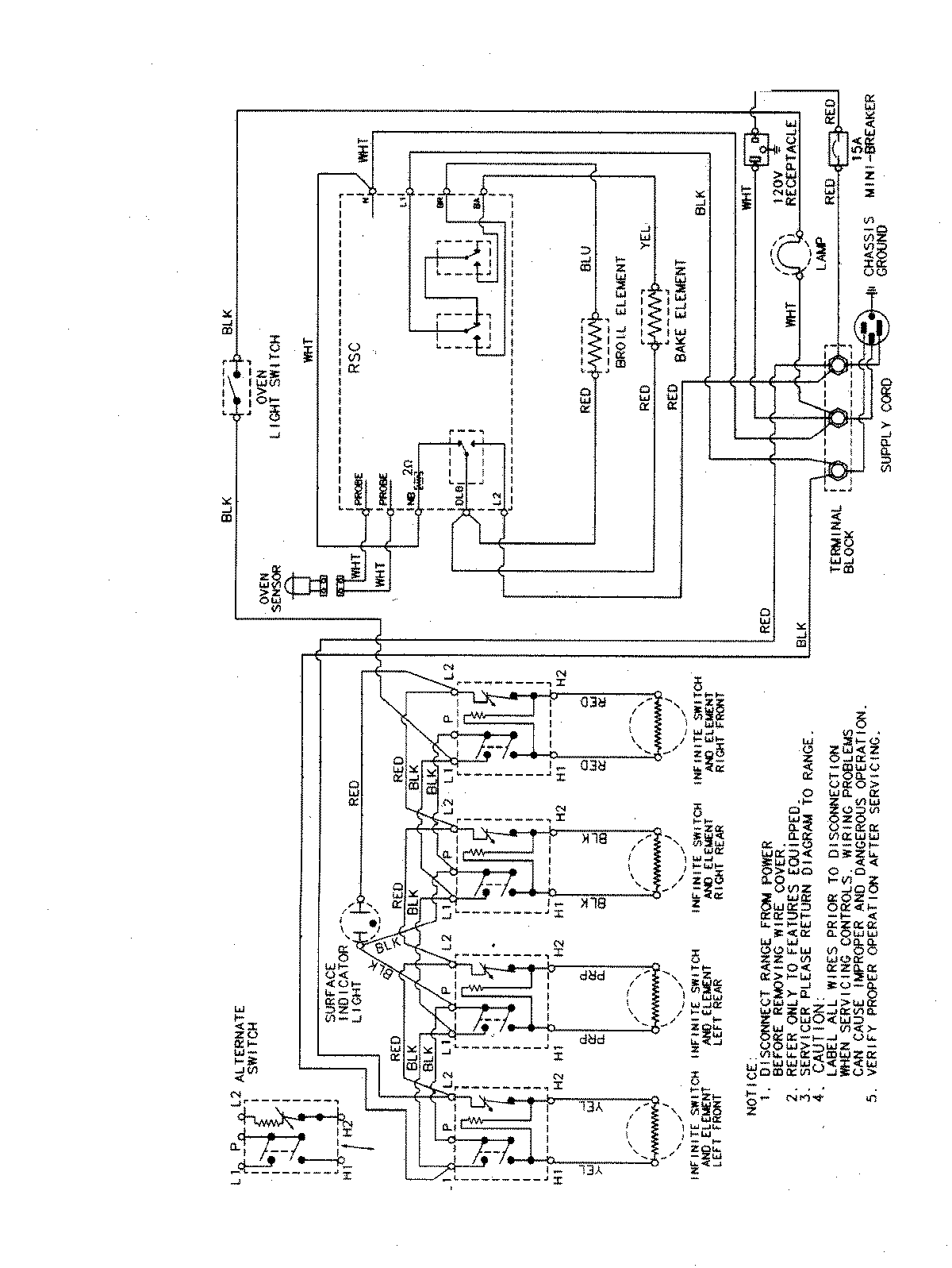
PER4310BCW 06 – WIRING INFORMATIONadmin2025-04-26T09:44:47+00:00PER4310BCW 06 – WIRING INFORMATION ProductsPositionProductNIMAY 15002852