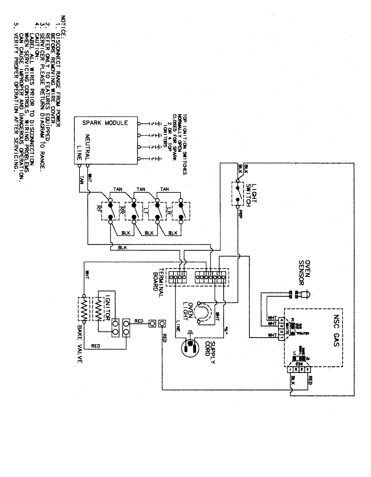
PGR4420LDQ 07 – WIRING INFORMATIONadmin2025-04-26T09:45:58+00:00PGR4420LDQ 07 – WIRING INFORMATION ProductsPositionProductNIMAY 15003530