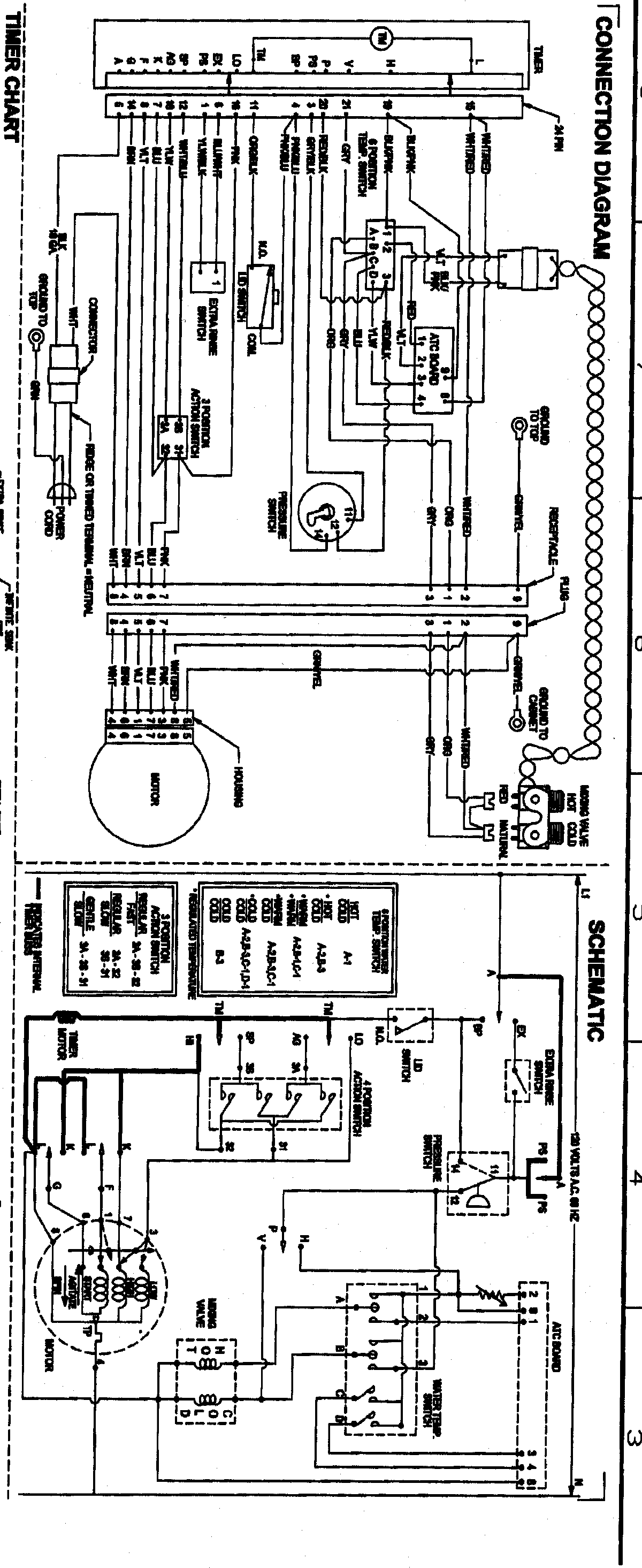
SAV5701AWQ 09 – WIRING INFORMATIONadmin2025-04-26T09:06:06+00:00SAV5701AWQ 09 – WIRING INFORMATION ProductsPositionProductNIMAY 15003111