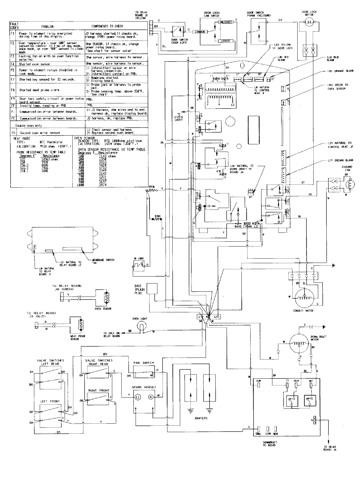
SVD48600B 09 – WIRING INFORMATIONadmin2025-04-26T08:51:29+00:00SVD48600B 09 – WIRING INFORMATION ProductsPositionProductNIMAY 15001757