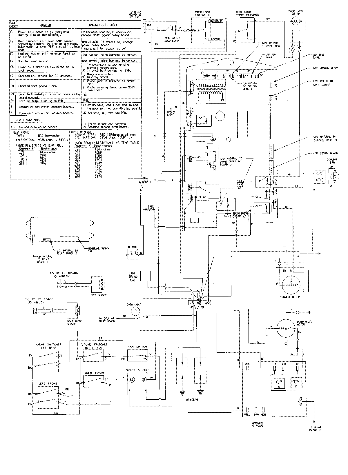
SVD48600BC 09 – WIRING INFORMATIONadmin2025-04-26T08:51:36+00:00SVD48600BC 09 – WIRING INFORMATION ProductsPositionProductNIMAY 15002162