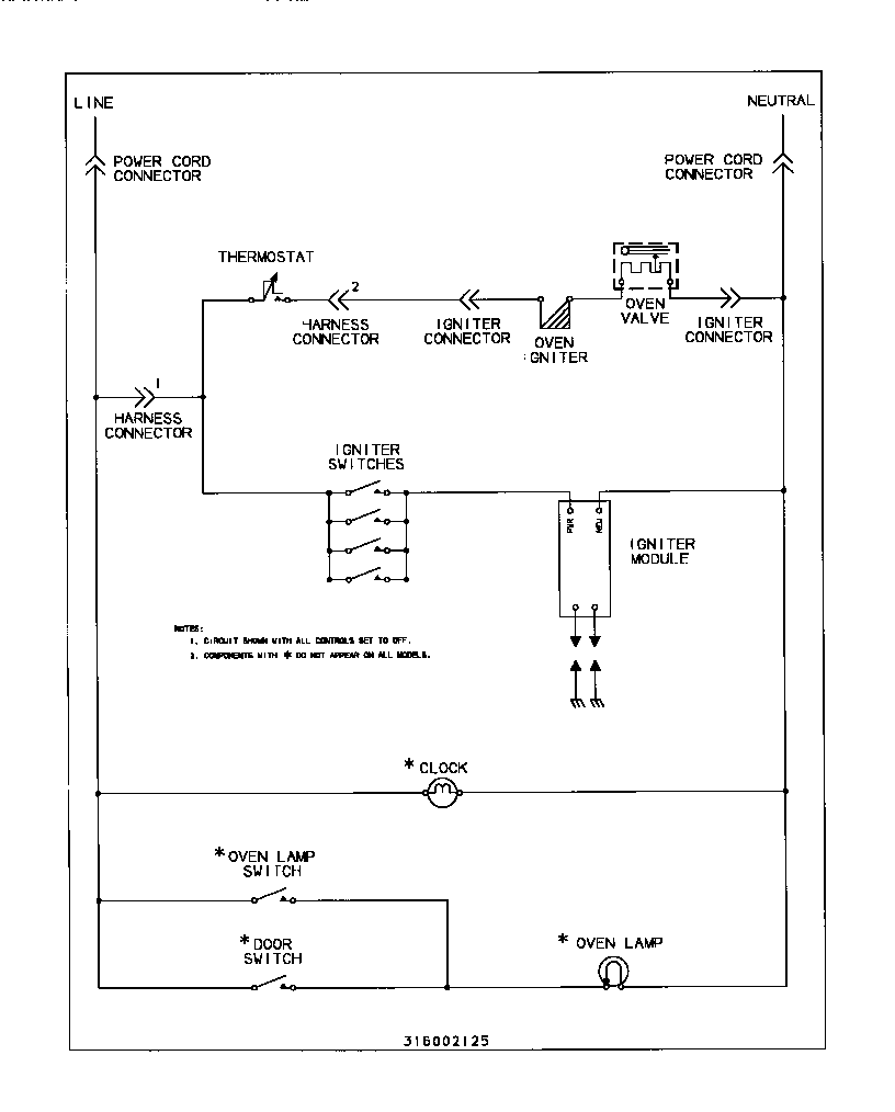
TGF332BCWA 07 – WIRING DIAGRAMadmin2025-04-26T11:59:00+00:00TGF332BCWA 07 – WIRING DIAGRAM ProductsPositionProduct1WCI 316002125