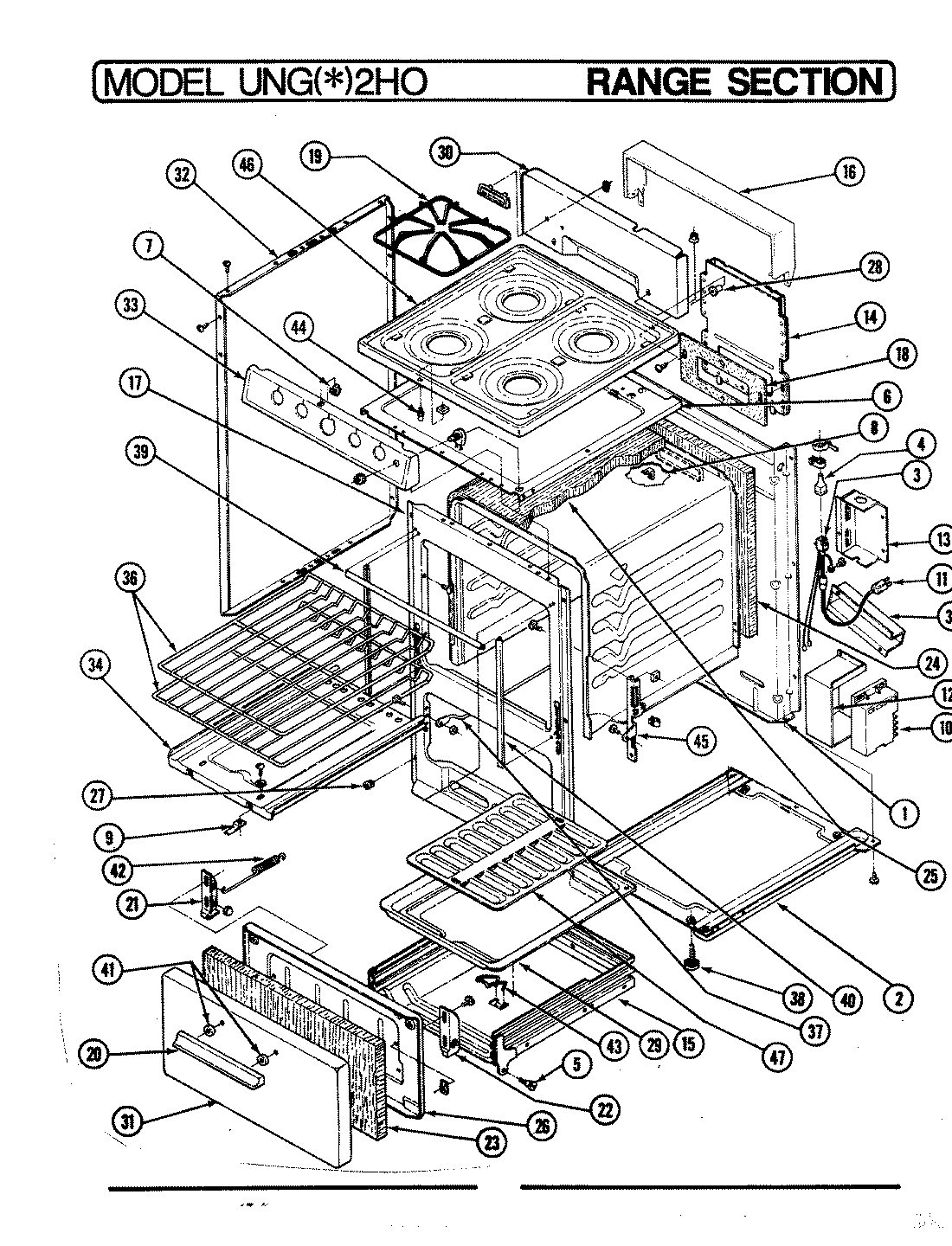
UNGA2H0 01 – BODYadmin2025-04-26T08:52:31+00:00UNGA2H0 01 – BODY ProductsPositionProduct1MAY 1G100087452MAY 1G102025654MAY 0B028006505MAY 0B904907226MAY 1G101038537MAY Y0C040001268MAY Y0C001001999MAY 7G1200029914MAY 1G1180219915MAY 1G0630055316MAY 1G0561202417MAY 1G0910955318MAY Y0G0130059919MAY Y0G0030091220MAY Y0H0302911121MAY 5G1110014522MAY 5G1110024523MAY 0I0201012424MAY 0I1003013225MAY 0I0901013226MAY 1G0300335327MAY Y0N1013155028MAY 0N0242122629MAY 5G0660025330MAY 1G040093MW30MAY 1G040093MA31MAY 1G020019MA31MAY 1G020019MW32MAY 1G060027MA32MAY 1G060027MW33MAY 1G022311MW33MAY 1G022311MA34MAY 1G0750415335MAY 1G1770094136MAY Y0R0100161137MAY 1G1230049937MAY 1G1230059938MAY Y0S0150012639MAY Y0S0064349940MAY Y0S0064359941MAY 0S0350099942MAY 0S0010459942MAY Y0S0100019943MAY 0S0200029944MAY Y0S0290012645MAY 7E1270592245MAY 7E1270602246MAY 1G080084MA46MAY 1G080084MW47MAY 5G06700153