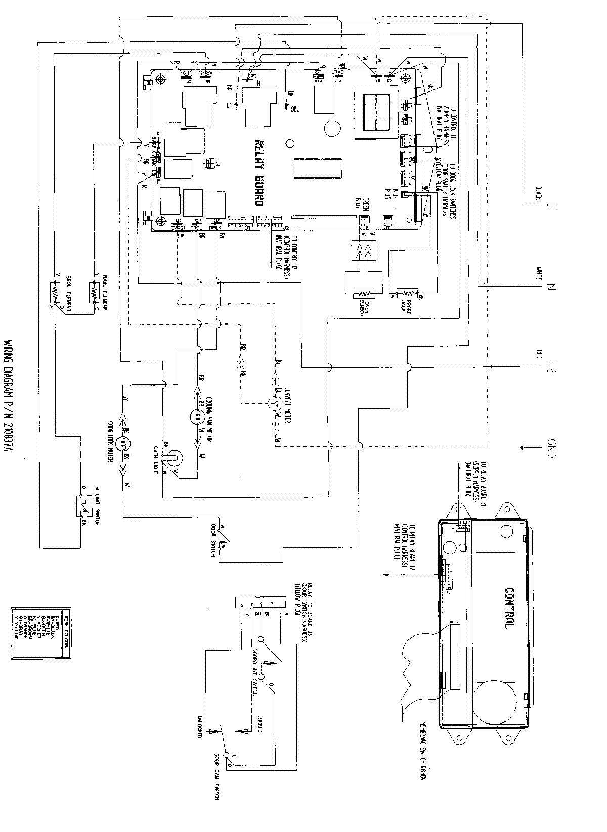
W30400PC 06 – WIRING INFORMATION (W30400PC)

W30400PC 06 – WIRING INFORMATION (W30400PC)

Products

PositionProduct
NIMAY 15002048