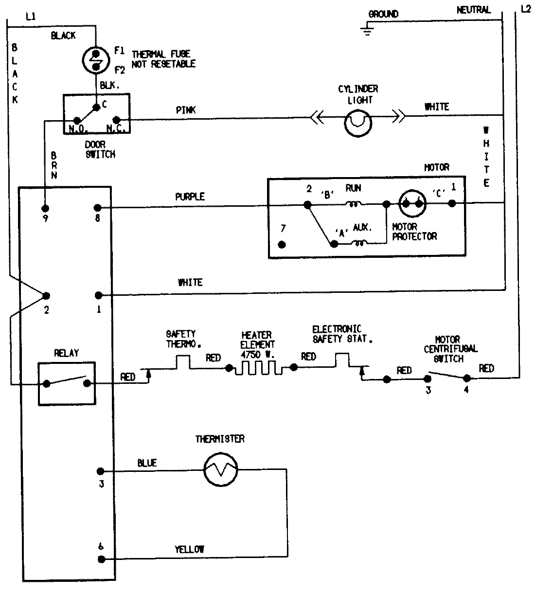
YE209KA 06 – WIRING INFORMATIONadmin2025-04-26T08:49:23+00:00YE209KA 06 – WIRING INFORMATION ProductsPositionProductNIMAY 15001223