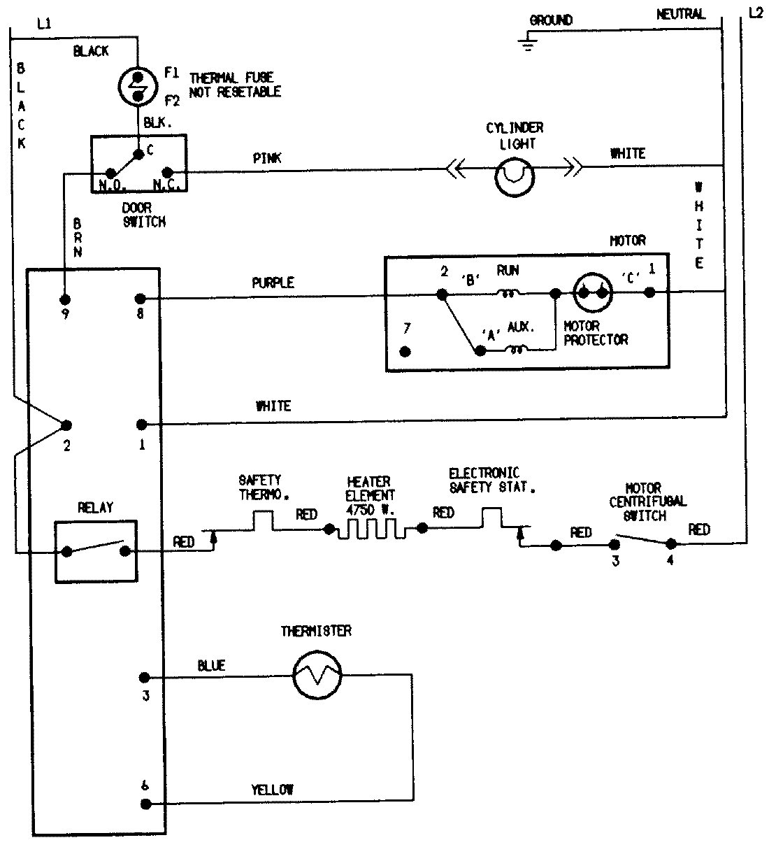
YE209KVC 07 – WIRING INFORMATIONadmin2025-04-26T08:49:46+00:00YE209KVC 07 – WIRING INFORMATION ProductsPositionProductNIMAY 15001223