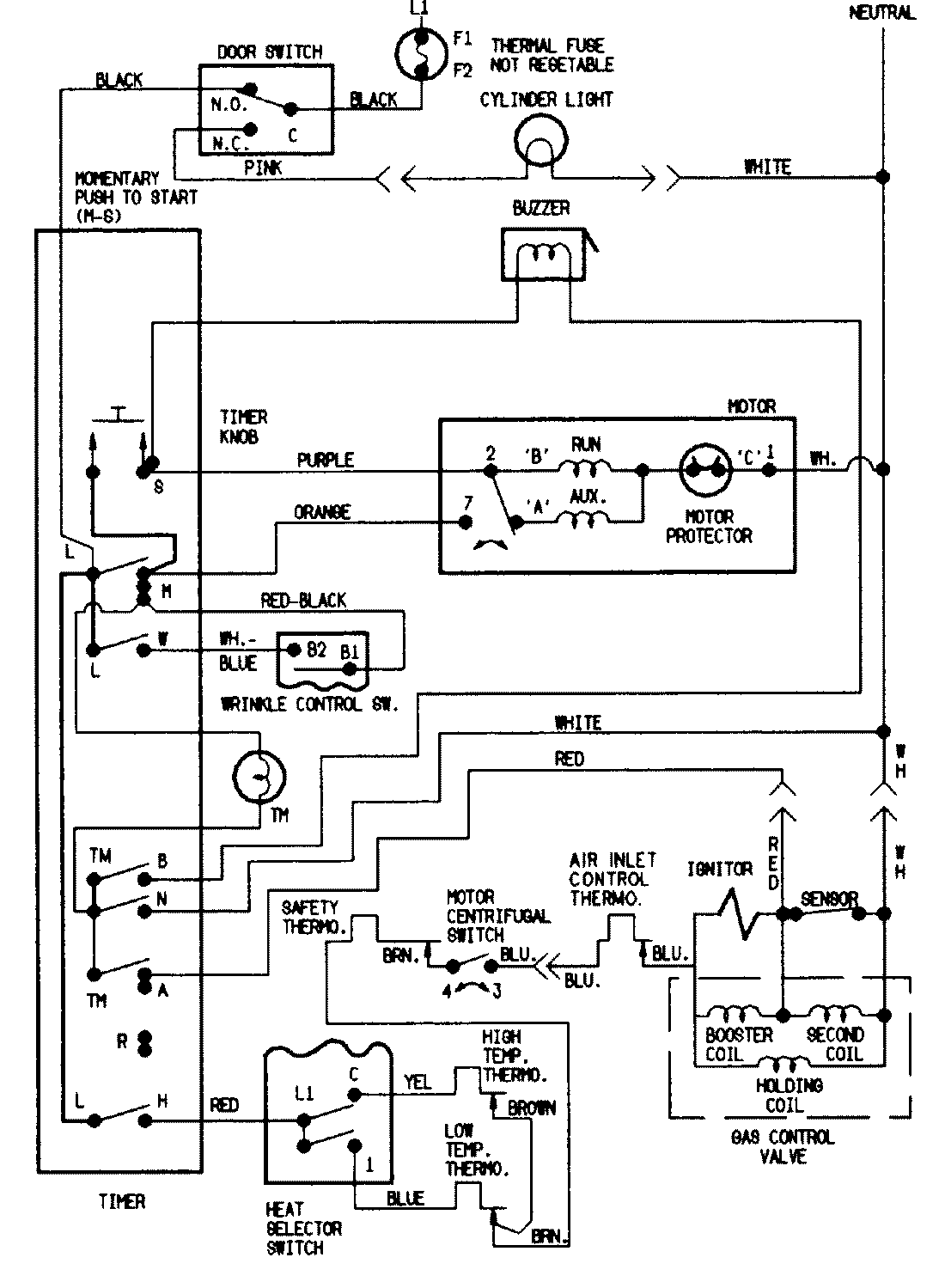
YG228LV 07 – WIRING INFORMATIONadmin2025-04-26T08:49:26+00:00YG228LV 07 – WIRING INFORMATION ProductsPositionProductNIMAY 15001226NIMAY 15002546